• HOME
  • LO STUDIO
  • PROGETTI
  • CONTATTI

PROGETTI STRUTTURALI

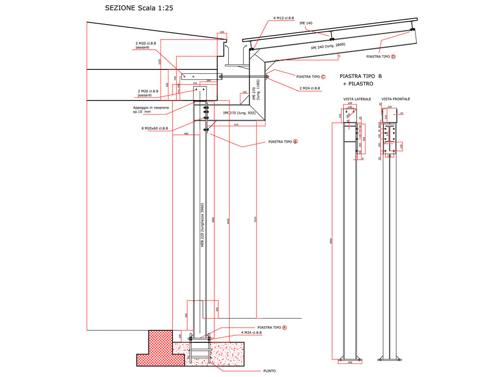
Lo Studio Tecnico Ferrero segue la progettazione di strutture in cemento armato, legno, acciaio con particolare attenzione alle problematiche legate all'antisismica. Grazie all'utilizzo del software CDS ( licenza 24132 full) è possibile modellare i progetti strutturali come telai tridimensionali e arrivare al calcolo delle sollecitazione e alla verifica delle membrature strutturali secondo la nuova normativa NTC 2008. Grazie alla ventennale esperienza nel calcolo delle strutture, è possibile trovare sempre le soluzioni strutturali più performanti e più economiche per ciascun problema strutturale.

  • DatA: 1996-2015
  • Cliente: PRIVATO
> Tutti i progetti

Studio Tecnico Ferrero

Via Lombarda, 2
10060 San Secondo di Pinerolo (TO)
Tel. + 39 0121.374523

E-mail: enrico.ferrero.pinerolo@tin.it

Copyright 2016 Studio Tecnico Enrico Ferrero. P.IVA 06979560015 - Cookie policy
Credits